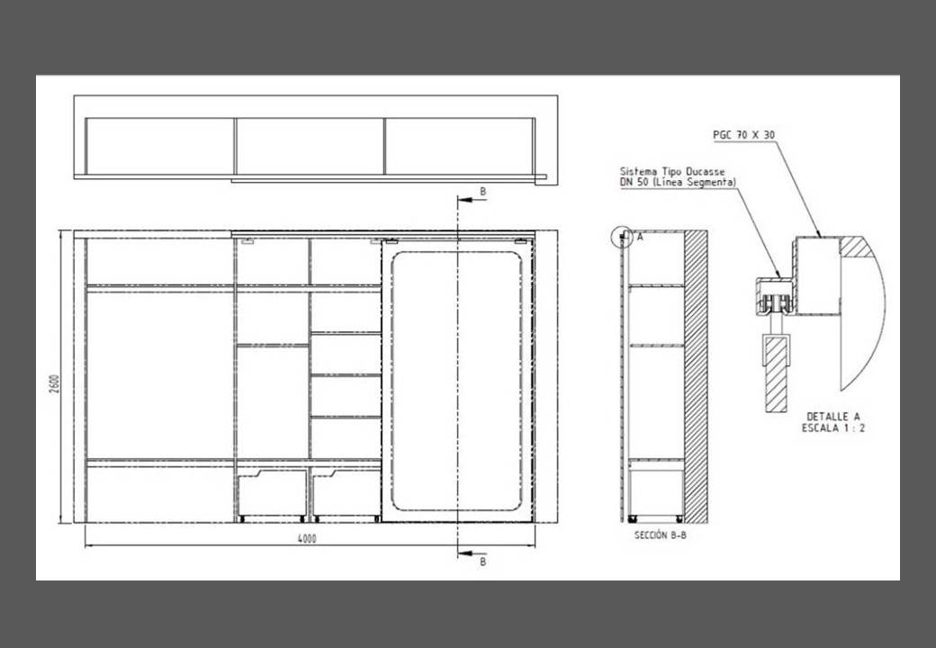
MUEBLE F1
DIMENSIONES:
Longitud y profundidad: 4000 mm x 500 mm.
Altura: 2600 mm (desde el nivel del piso al plano de trabajo).
MATERIAL:
Placa Multilaminada de Eucalipto o Guatambu / MDF 18mm.
PROTECCION - TERMINACION:
Barniz / Laca Poliuretánica.
PUERTA:
Placa de MDF 15 mm con frente de lamina pizarra mágica.
Herrajes de deslizamiento DUCASSE 50 o similar.
CAJONES:
Realizados en placa multilaminada c/ruedas de PVC y freno.











